Hírek
2019. Augusztus 28. 16:06, szerda |
Helyi
Forrás: Infopapa.hu (Szalóky Zsolt)
A lakótelepek megújítása is szerepel a tervekben
Ígéretéhez híven Áldozó Tamás polgármester ma egy újabb pontját ismertette az Esterházy2035 elnevezésű programnak.
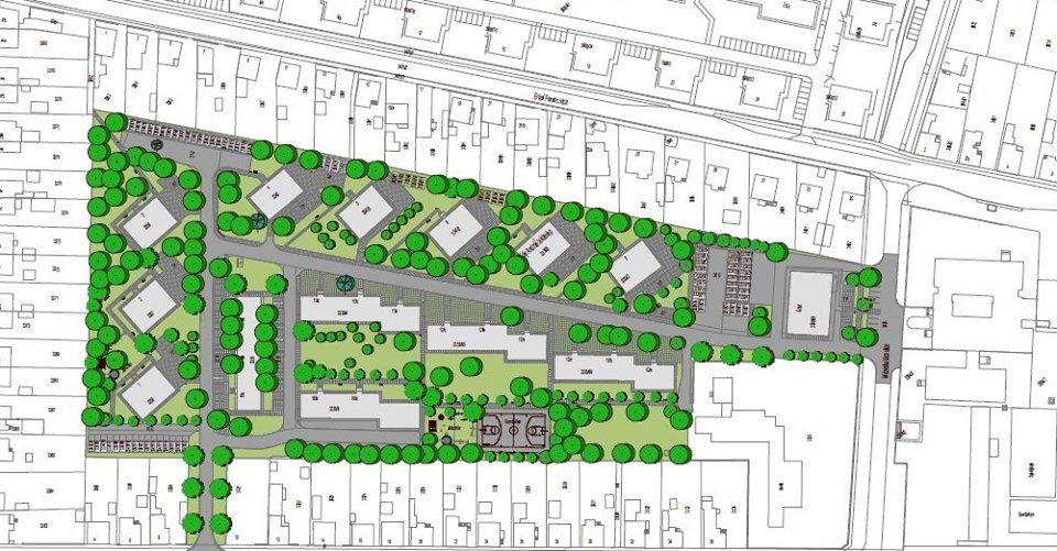
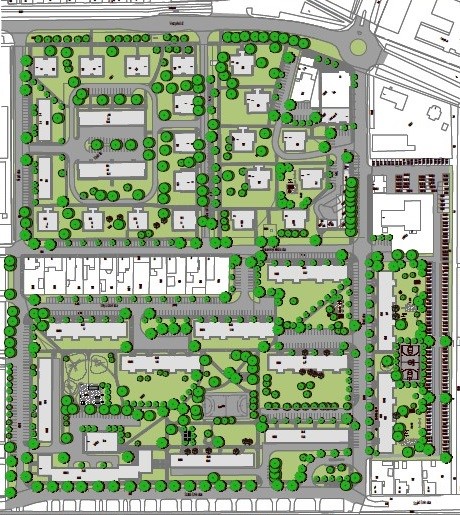
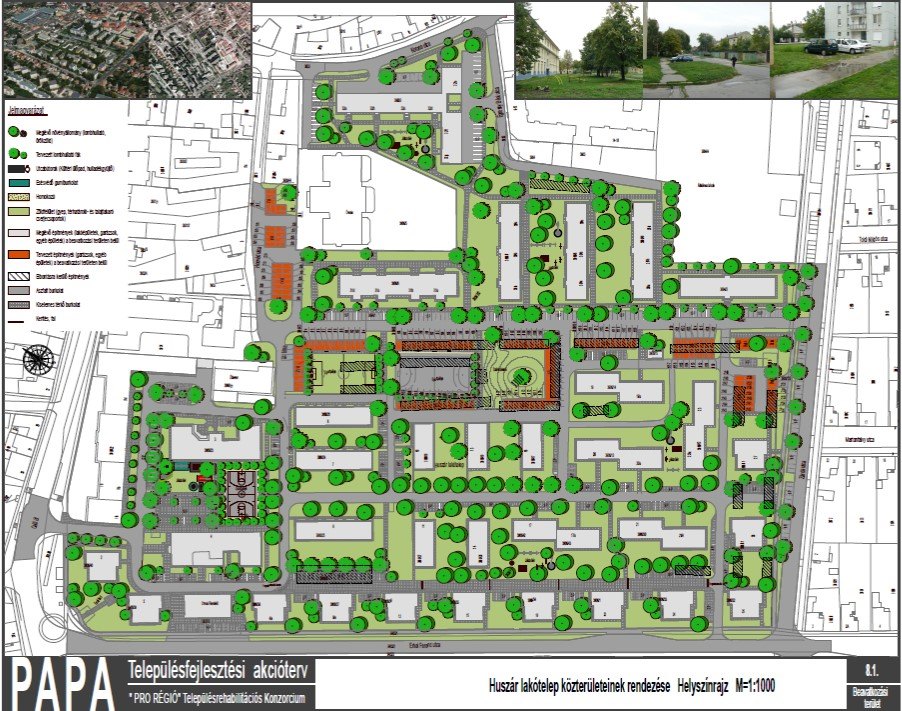
A programpont a lakótelepi (volt Kilián, Vajda, Huszár, Fáy, Igal, Elekthermax) lakókörnyezetek rehabilitációjáról szól. Áldozó Tamás úgy fogalmaz, hogy az elmúlt években nagy előrelépés történt számos épület energetikai korszerűsítésében, de az autók számának robbanásszerű növekedése új kihívások elé állítja ezeket a lakóövezeteket. Ezen egyre súlyosbodó problémán enyhítene a lakótelepi lakókörnyezet rehabilitációja, közösségfejlesztés lakótelepi környezetben - című programpont.
- A város lakosságának negyede lakótelepeken él, de a telepek zsúfoltak, közlekedési feltételeik kezelhetetlenek, a parkolási problémák mindennaposak. A közösségépítés legelemibb feltételei (közösségi terek) is hiányoznak. A hiányok pótlása halaszthatatlan. Megoldandó feladat a lakótelepi zöldfelületek csökkenésének megállítása terepszint alatti parkolási lehetőségek és/vagy zöldtetők kialakításával.
A beavatkozások eredménye a megújult lakótelepi környezet, a hiányzó közösségi terek kialakulása, a helyi identitás erősödése - írja a városvezető.
A polgármester néhány tervlapot is közzétett közösségi oldalán:





A lista kép csak illusztráció (veol.hu).
Ezek érdekelhetnek még
2026. Február 21. 15:00, szombat | Helyi
Az amerikai legfelsőbb bíróság érvénytelenítette Donald Trump globális vámintézkedéseit
Az Egyesült Államok Legfelsőbb Bírósága érvénytelenítette a Donald Trump elnök által bevezetett, országonként megállapított vámokat pénteken.
2026. Február 21. 11:54, szombat | Helyi
A Tisza és a Fidesz is összegyűjtötte az induláshoz szükséges ajánlásokat
A Tisza Párt elnöke szerint rendszerváltó hangulat fogadta az aktivistáikat, mindenhol tömegek álltak sorba, hogy aláírhassák az íveket. Orbán Viktor azt írta: "Nagyok vagyunk, erősek vagyunk és győzni fogunk!"
2026. Február 20. 19:19, péntek | Helyi
Gulyás Gergely Pápán: megkezdődött a kampány, komoly tétje van a választásnak
2026. Február 20. 12:00, péntek | Helyi
EM államtitkár: az olcsó orosz energiaforrások kora véget ért a háborúval
Az Európa számára elérhető, olcsó orosz energiaforrások korának véget vetett az orosz-ukrán konfliktus - mondta Gondola Csaba, az Energiaügyi Minisztérium (EM) körforgásos gazdaságért és klímapolitikáért felelős államtitkára.

